

Стандарт изготовления изделия: Серия 86
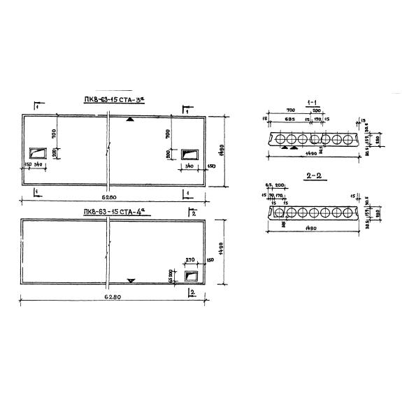
Панели перекрытия ПК 8-63-15 ста-4 а – это обязательные элементы межэтажных перекрытий кирпичных жилых зданий с продольными несущими стенами. Они изготавливаются в виде прямоугольной плиты толщиной 220 мм с поперечными воздушными каналами. По контуру на них сделаны скосы под небольшим углом. Панели перекрытия этого типа имеют частично срезанный торец с левой стороны. Для прокладки инженерных сетей вдоль правой длинной грани предусмотрено горизонтальное сквозное отверстие диаметров 159 мм. Такая оригинальная конструкция дает возможность существенно уменьшить массу армированных бетонных изделий и значительно увеличить тепловые и звуковые изолирующие характеристики. Для удобства перемещения бетонных армированных панелей перекрытия ПК 8-63-15 ста-4 а во время перемещения либо установки в армирующем каркасе предусмотрены три строповочные петли. Если вы планируете использовать железобетонные панели перекрытия без предварительного напряжения для возведения жилых кирпичных зданий с несущими продольными стенами, то в Серии 86 есть возможность посмотреть разнообразные варианты типовых чертежей плит межэтажных перекрытий такого вида, применяемых при сборке многоэтажных жилых кирпичных построек.
1. Варианты маркировки
Любая произведенная продукция из армированного бетона в обязательном порядке условно обозначается с помощью буквенных и цифровых символов. Проектная Серия 86 предлагает несколько примеров маркировки межэтажных плит. Этот нормативный документ рекомендует указывать на одной из граней панелей перекрытия ПК 8-63-15 ста-4 а вид армированной бетонной продукции, габаритные размеры, варианты специфики исполнения.
1. ПК 4-51-10;
2. ПК 4-63-10.
2. Основная сфера применения
Панели перекрытия ПК 8-63-15 ста-4 а, изготовленные из армированного бетона, пользуются широкой востребованностью при возведении кирпичных жилых зданий в несколько этажей с продольными несущими стенами. Их укладывают в перекрытия между этажами в местах, где планируется прокладывать инженерные коммуникации. Изделия такого типа из армированного бетона обладают достаточной прочностью и жесткостью. При этом они способны обеспечить несущую способность высокого уровня благодаря наличию в структуре пространственных каркасов из армирующих сеток. С помощью этих изделий достигается высокая огнестойкость возведенных строений. В проектной Серии 86 приведены разнообразные варианты типовых конструкций этих изделий, расчеты для их подбора, особенности монтажа и эксплуатации. Этот нормативный документ рекомендует использовать бетонные армированные панели перекрытия ПК 8-63-15 ста-4 а при сборке межэтажных перекрытий в кирпичных многоэтажных жилых домах с несущими продольными стенами с неагрессивной средой.
3. Обозначение маркировка изделия
На железобетонные панели перекрытия ПК 8-63-15 ста-4 а, в соответствии с требованиями Серии 86, наносятся условные обозначения по буквенно-цифровой системе. Они кратко предоставляют информацию о виде изделия, его габаритных размерах, специфике исполнения конструкции. Например, если мы решим расшифровать маркировку на боковой грани панели перекрытия ПК 8-63-15 ста-4 а, то узнаем, что символы условной кодировки обозначают:
1. ПК – панель перекрытия с круглыми пустотами;
2. 8 - нагрузка;
3. 63 – длина в дециметрах;
3. 15 – ширина, округленная до целых дециметров.
Планируя сборку межэтажного перекрытия в многоэтажном жилом здании с использованием данного железобетонного изделия, желательно обратить внимание на справочные параметры панели перекрытия ПК 8-63-15 ста-4 а:
Длина = 6280;
Ширина = 1490;
Высота = 220;
Вес = 2918;
Объем бетона = 1,167;
Геометрический объем = 2,0586.
4. Изготовление и основные характеристики
Бетонные армированные панели перекрытия ПК 8-63-15 ста-4 а изготавливаются с учетом типовых чертежей, особых условий производства и испытаний, приведенных Серии 86. При их формовке рекомендуется применять тяжелые бетоны марок В22,5, обладающими высокими прочностными параметрами на сжатие, например, М200. В ходе уплотнения бетонной смеси специалисты рекомендуют использовать технологии вибрационного формообразования. Для улучшения эксплуатационных характеристик в межэтажные плиты при изготовлении закладывают пространственные каркасы, собранные из армирующих сеток. Усиливающие детали собираются с использованием контактной точечной электросварки либо технологии обвязки специальной армирующей проволокой. Для этого используют стальную арматуру периодического профиля класса А-IV. Такая конструкция продукции из армированного бетона дает возможность обеспечить предельные нагрузки до 800 кгс/м2, водопроницаемость не ниже класса W2. В процессе изготовления рекомендуется в обязательном порядке контролировать положение армирующего пространственного каркаса и дополнительно усиливающих сеток, толщину защитного слоя бетонного покрытия.
5. Транспортировка и хранение
Железобетонные массивные панели перекрытия ПК 8-63-15 ста-4 а рекомендуется укладывать и перевозить, оберегая от повреждения и деформации. При складировании между ними необходимо прокладывать деревянные брусья толщиной не менее 40 мм. Подробнее с особенностями транспортировки и хранения этих изделий можно ознакомиться в Серии 86, специально разработанной для всех сборочных элементов, применяемых при строительстве кирпичных жилых домов с несущими продольными стенами.