О товаре:
- Длинна: 2670 мм.
 - Ширина: 2980 мм.
 - Высота: 600 мм.
 - Вес: 4440 кг.
 - ГОСТ, Серия: Серия 1.420.1-25 скачать
 - Объем бетона: 1,776 м3
 - Геометрический объем: 4,774 м3
 
Стандарт изготовления изделия: Серия 1.420.1-25
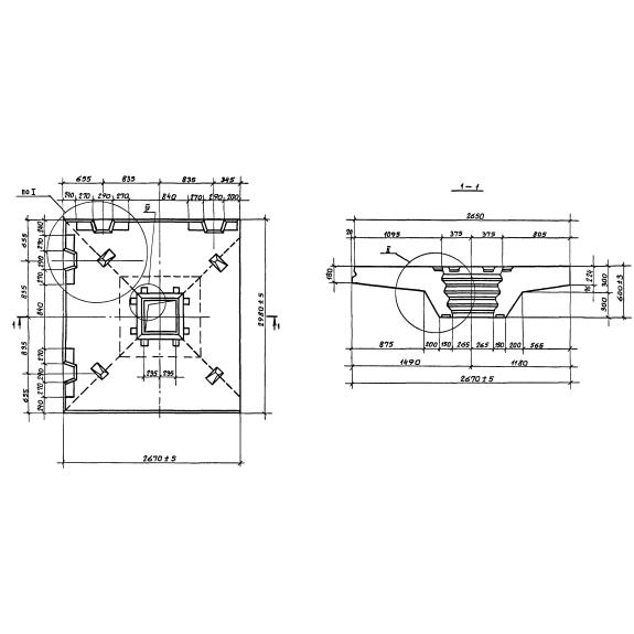
Капители КТ 2 пр-5 представляют собой высокопрочные элементы сборных железобетонных конструкций, устанавливаемые на колонны в производственных зданиях, строящихся в соответствии с проектами этой серии. Железобетонный строительный элемент имеет прямоугольное сечение, большее в верхней части, сужающееся к низу. Конструктивно предусмотрена возможность соединения капителей с колоннами. Так как строительство выполняется без балок, капители в таких зданиях – важнейший элемент, выполняющий функцию передачи вертикальной нагрузки на опоры. Несущими элементами служат стены и колонны, на которые опираются капители. В зависимости от типа опирания, различаются конструктивные решения и внешний вид изделий. Для контактирующих со стенами капителей предусмотрены закладные изделия, позволяющие выполнить их монтаж с максимальной надежностью и минимальными трудозатратами.
1. Варианты маркировки
Различия в маркировках (расшифровку смотрите ниже) выражают отличия свойств и характеристик капителей, производителем все марки серии:
1. КТ 2лев-5;
2. КТ 2пр-5.
2. Основная сфера применения
Капители КТ 2 пр-5 и другие элементы этой серии применяются при возведении производственных многоэтажных зданий с сетками колонн и безбалочными перекрытиями. Серия 1.420.1-25 изначально разработана для строительства объектов агропромышленного комплекса – молокозаводов, мясокомбинатов, холодильников и других производств, где по техническим и экономическим параметрам целесообразно его применение. Перекрытия без использования балок имеют ряд преимуществ с точки зрения санитарных норм, использование же колонн и капителей, принимающих и распределяющих нагрузку от вышестоящих этажей на несущие элементы конструкции, дают возможность создавать безопасные и надежные строения с необходимым количеством этажей. Изготовленные из материалов высоких классов, капители КТ 2 пр-5 отлично справляются с передачей нагрузки колоннам – одному из главных несущих элементов. Рассчитанная и спроектированная конструкция позволяет использовать изделия под нагрузкой до 30 кПа.
3. Обозначение маркировки
Характеристики капителей различаются, разбираясь в составляющих маркировки, состоящей из буквенно-цифровых групп, можно легко понять свойства продукции и выбрать соответствующие проекту. На примере капителей КТ 2 пр-5:
1. Кт – название группы изделий, капители;
2. 2пр – порядковый номер типоразмера капители и ее исполнение;
3. 5 – несущая способность железобетонного элемента.
Капители КТ 2 пр-5 имеют габаритные размеры:
Длина = 2670;
Ширина = 2980;
Высота = 600;
Вес = 4440;
Объем бетона = 1,776;
Геометрический объем = 4,774.
4. Материалы изготовления и характеристики изделия
Составляющие для изготовления капителей подобраны с учетом специфики использования. Так как изделия должны принимать высокие статичные, а часто, и динамичные нагрузки, обязательно берутся высококлассные материалы, способные придать продукции требуемую прочность, от которой зависит безопасность и надежность всего строения. В зависимости от требуемых характеристик, обусловленных применением капителей, для их производства используется бетон классов от В 25 до В 40 по прочности на сжатие, морозостойкость при этом формируется на основании условий эксплуатирования. Армирование капителей КТ 2 пр-5 выполняется при помощи пространственных каркасов, собираемых из отдельных элементов, покрываемых защитной антикоррозийной смесью в процессе производства. Марка стали для каркаса подбирается индивидуально в соответствии с условиями эксплуатирования – температуре, степени агрессивности среды, характере нагрузок, класс стали принят А-1, А-111. Конструкция предусматривает наличие закладных компонентов, отличающихся количеством в отдельных изделиях (информация о наличии закладных изделий и их количество отображается в маркировке).
5. Складирование, транспортировка и хранение
Для складирования и транспортировки капители устанавливают на ровной поверхности, используя деревянные подкладки. При транспортировании важно надежно закрепить изделия, исключив их смещения и удары. Погрузка и выгрузка выполняется спецтехникой, монтаж – с использованием предусмотренных монтажных закладных изделий и пазов. Недопустимо выполнять выгрузку сваливанием или сбрасывать изделия с какой-либо высоты – в результате неаккуратного обращения, продукция может получить деформации в виде трещин, сколов, несовместимых с условиями эксплуатирования. При долгосрочном хранении необходимо обеспечить защиту капителей КТ 2 пр-5 от воздействия воды и других, агрессивных железобетону веществ, для того, чтобы сохранить свойства, приобретенные продукцией во время производства.

