О товаре:
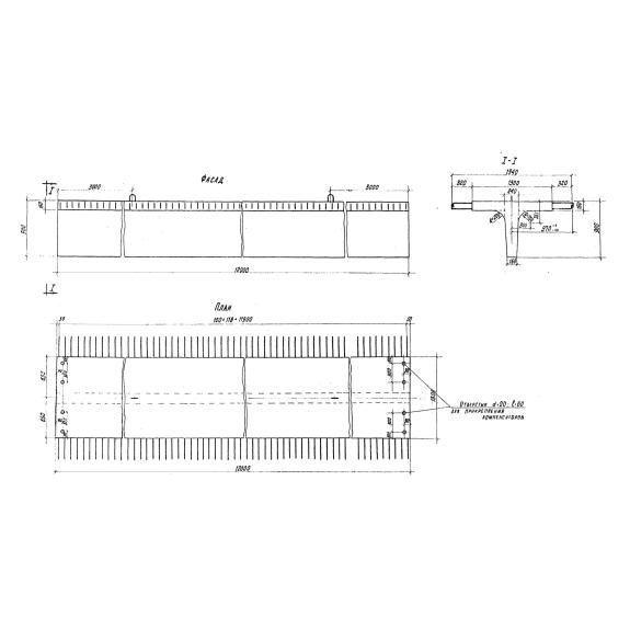
- Длинна: 12000 мм.
- Ширина: 1300 мм.
- Высота: 900 мм.
- Вес: 10900 кг.
- ГОСТ, Серия: Серия 3.503-14 скачать
- Объем бетона: 4,34 м3
- Геометрический объем: 14,04 м3
Стандарт изготовления изделия: Серия 3.503-14
Балка Бпр 12 – строительный прочный элемент с тавровой формой сечения. Серия 3.503-14 содержит основную информацию о пролетных строениях без диафрагм и с диафрагмами из цельно перевозимых балок для автодорожных мостов. Балки делятся на два вида, а именно на крайние и промежуточные. Крайние отличаются от промежуточных односторонними выпусками арматуры, которые служат для сопряжения с другими элементами. Используются, как правило, для эксплуатации в районах с расчетной температурой минус 40 градусов по Цельсию. Элементы запроектированы из прочных качественных материалов, поэтому сооружения с применением данных изделий очень долговечны.
Расшифровка маркировки
Железобетонные изделия имеют свою маркировку. Благодаря таким обозначениям можно быстро и без затруднений найти на складе нужную продукцию. Маркировочные надписи состоят из буквенных и цифровых индексов. Рассмотрим расшифровку маркировки балки Бпр 12:
1. Бпр – балка промежуточная (Бкр-крайняя);
2. 12 – длина изделия, указывается в метрах.
Маркировочные знаки наносят на боковую поверхность балок. Дополнительно указывают дату изготовления, отпускную массу, логотип производителя. Применяется специальная несмываемая, влагоустойчивая краска. Не допускается внесения изменений в маркировочные надписи.При необходимости можно использовать еще и трафареты. На лицевой части изделия в обязательном порядке указывается штамп отдела контроля качества.
Основные характеристики и изготовление
В Серии 3.503-14 содержится вся информация и рабочие чертежи балок Бпр 12. К сырью предъявляются очень жесткие требования. Для производства конструкций применяют гидротехнический бетон марки М300, а морозостойкость Мрз 300 по ГОСТ 4795-68. Обычно марка бетонной смеси по морозостойкости принимается в зависимости от среднемесячной температуры наиболее холодного месяца и должна быть не ниже F 200. Водонепроницаемость устанавливается исходя из района строительства. При изготовлении железобетонных балок в качестве рабочей арматуры используются стержни из стали класса A-II по ГОСТ 5781061 и сталь класса A-III.Каркасы и сетки изготавливаются при помощи контактной точечной сварки. Прочие арматурные изделия, это гладкие круглые стержни из горячекатаной стали класса A-I. Сложное армирование, обеспечивает высокую прочность и надежность всей конструкции.Для подъемных петель запроектирована горячекатаная сталь класса A-I по ГОСТ 5781-61.Закладные детали изготавливают с применением полосовой стали. Каждая партия готовой продукции проходит контрольные испытания на проверку качества. Если не было обнаружено никаких изъянов, то изделия снабжаются техническим паспортом, который содержит основную информацию о материале, из которого изготовлено было изделие, а так же дату производства.
Транспортировка и хранение
Хранение и транспортировка балок Бпр 12 осуществляются по определенным правилам. Готовые изделия хранятся на оборудованных складах, их сортируют по маркам и укладывают в рабочем положении в штабеля высотой не более двух метров. В местах отверстий для строп должны быть предусмотрены прокладки толщиной не менее 30 мм. Выступающие части должны быть хорошо защищены. При транспортировке конструкции должны быть закреплены специальными фиксаторами для полного предохранения от смещений. Погрузка и разгрузка железобетонных элементов должна производиться при помощи крана и с особой осторожностью.

