

О товаре:
- Длинна: 8000 мм.
- Ширина: 400 мм.
- Высота: 400 мм.
- Вес: 4100 кг.
- ГОСТ, Серия: Серия 3.015-2/77 скачать
- Объем бетона: 1,64 м3
- Геометрический объем: 1,28 м3
Стандарт изготовления изделия: Серия 3.015-2/77
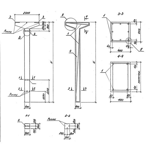
Колонна К 13-2 (3.015-2/77) - это железобетонное изделие прямоугольной формы и с прямоугольным сечением. Длинномерные конструкции Серии 3.015-2/77 регламентируются как несущие элементы железобетонных унифицированных одноярусных эстакад. В свою очередь эстакада - это инженерное сооружение, предназначенное для надземной прокладки трубопроводов, по которым передается нефть газ, горячие воды и другие продукты металлургической и химической промышленности. К 13-2 (3.015-2/77) применяются в сооружениях эстакад, строящихся в районах с расчетной температурой воздуха до -55 градусов по Цельсию и в районах с сейсмической активностью до 8 баллов включительно. Также такие конструкции разработаны для строительных площадок с обычной, слабо- и среднеагрессивной газовой средой.
Расшифровка маркировки изделия
Маркировкой наделяются все без исключения железобетонные изделия. Такие обозначения включают в себя группы из букв и чисел. Так, если рассматривать расшифровку марки К 13-2 (3.015-2/77), то можно увидеть следующее:
1. К - тип конструкции - колонна;
2. 13 - порядковый номер типоразмера;
3. 2 - несущая способность элемента.
Краской особого состава, на боковой грани готового изделия, указываются: маркировка, товарный символ изготовителя, масса изделия, а также дата выпуска колонны. Для удобства написания здесь могут использоваться резиновые штампы или трафареты. Также на К 13-2 (3.015-2/77) наносится «ось колонны» или «ось эстакад», для правильной ориентировки изделия во время монтажа.
Материалы и производство
Колонны изготавливают в заводских условиях на основании спецификации и рабочих чертежей из Серии 3.015-2/77. Производство происходит в стальных опалубках. Разрешается также в формах из других материалов, отвечающих всем требованиям по прочности и качеству изготовления конструкций. К 13-2 (3.015-2/77) запроектированы из бетона марок 200, 300 и 400. Отрыв и съем колонн из опалубки разрешается производить после достижения бетоном 70% проектной прочности. При разработке конкретного проекта определяются марки бетона по морозостойкости и водонепроницаемости, здесь учитываются режим эксплуатации конструкций и значения зимней температуры наружного воздуха в районе строительства.
Для того чтобы при эксплуатации изделие успешно справлялось с динамическими и статистическими нагрузками, помимо использования особо плотного бетона, колонны армируют. К 13-2 (3.015-2/77) армируется стальным пространственным каркасом, который собирается из плоских каркасов, с помощью сварки клещами. Используемая для них сталь классов А-I и А-III. Традиционно, изделие оснащено закладными деталями, которые используются для соединения отдельных элементов между собой. Такие детали в зависимости от степени агрессивности воздушной среды должны быть защищены от коррозии.
Поставляемые потребителю колонны, должны быть из партий изделий, которые имеют штамп технического контроля. Каждая партия изделий сопровождается специальным документом, подтверждающим ее качество.
Хранение и транспортировка
Складирование и перевозка железобетонной продукции, в том числе и колонн, должно происходить в соответствии с установленными правилами и нормами. Укладка К 13-2 (3.015-2/77) на складах допускается не более пять - семь рядов по высоте, на деревянных прокладках. Толщина такого инвентаря должна быть не меньше 6 сантиметров. Прокладки устанавливают в тех местах, где предусмотрены трубки для съема изделия с опалубки и монтажа. Перевозятся колонны специальным транспортом, как автомобильным, так и железнодорожным. С помощью специальных креплений исключаются трения и столкновения изделий, а также смещения конструкций во время транспортировки.