О товаре:
- Длинна: 4390 мм.
- Ширина: 1940 мм.
- Высота: 100 мм.
- Вес: 1850 кг.
- ГОСТ, Серия: Серия 1.100.1-7 скачать
- Объем бетона: 0,77 м3
- Геометрический объем: 0,8517 м3
Стандарт изготовления изделия: Серия 1.100.1-7
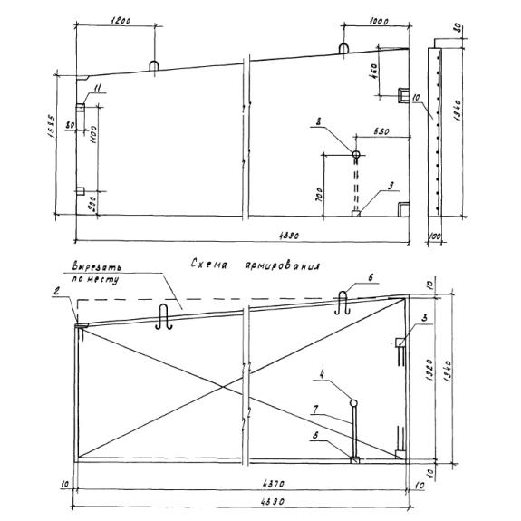
Стенка разделительная ПГЧ 44-19-10 – железобетонное изделие, имеющее форму прямоугольника. Запроектированные по Серии 1.100.1-7 элементы различаются рядом конструктивных особенностей: наличием скосов и дверных проемов. Вариативное разнообразие позволяет расширить комбинации применения данных строительных конструкций в каркасе здания.
Унифицированные разделительные стенки нашли широкое применение в домостроительной сфере 97 серии, разработанной для застройки 5-9 жилых многоэтажных зданий. Основной сферой использования данных конструкций является разделение пространства в помещении теплого чердака. Панели выступают в качестве стен, обеспечивая равномерное распределение нагрузки с кровельного перекрытия и разделяя общее пространство чердака на секции. Легкость и простота монтажа позволяют ускорить процесс строительства жилых объектов и обеспечить своевременную сдачу в эксплуатацию. Рекомендовано применять в 1 климатическом районе при температурах не ниже -40. Стенки подходят для использования в нормальных геологических районах.
Маркировочные обозначения
Торцевая грань элемента содержит на своей поверхности ключевые характеристики изделия, отраженные в специальном маркировочном обозначении. Совокупность цифр и букв ПГЧ 44-19-10 имеет следующую расшифровку:
1. ПГЧ – стенка разделительная (для чердака);
2. 44 – длина (дм);
3. 19 – высота (дм);
4. 10 – толщина (см).
Кроме маркировки продукции допускается наличие массы, штампа ОТК и даты производства. Читабельное маркировочное обозначение позволяет быстро ориентироваться в массе конструкций, хранящихся на складских территориях. Поэтому для нанесения символов рекомендуется использовать масляную краску, стойкую к атмосферным воздействиям.
Особенности производства
С последовательностью производства разделительных стенок ПГЧ 44-19-10 можно ознакомиться на страницах Серии 1.100.1-7. Важно следовать рекомендациям и соблюдать геометрические пропорции, представленные на рабочих чертежах нормативной документации.
Основной материал – тяжелый бетон класса по прочности на сжатие В15. Допускается применение пластифицирующих добавок, улучшающих физико-химические свойства бетонной смеси. Но следует учитывать и необходимость корректировки времени и условий пропарки при любых изменениях составляющих. Водонепроницаемость и морозостойкость должны быть не ниже F100 и W4. Все показатели могут варьироваться исходя из требований конкретного типового проекта.
Высокая прочность стенок достигается благодаря входящим в состав арматурным сеткам, заранее размещаемым в опалубочной форме на специальных фиксаторах. Сетки следует изготавливать из стальной проволоки класса Вр1 с диаметром прутков 5 мм. Закладные детали состоят из горячекатаного листового проката по ГОСТ 19903-74 и стальных стержней класса AII по ГОСТ 5781-82. С целью продления эксплуатационного срока конструкции все металлические составляющие проходят обработку специализированными составами, препятствующими образованию и развитию коррозии.
Транспортировка и хранение
Погрузочно-разгрузочные работы необходимо осуществлять с применением специального оборудования и траверс, обеспечивающих баланс и распределение нагрузки элементов при подъеме. Железобетонные разделительные стенки ПГЧ 44-19-10 следует укладывать в рабочее положение в специальных кассетах, предотвращающих трение конструкций между собой. Важно обеспечить хорошую деревянную опору, препятствующую соприкосновению с грунтом и защиту от механических повреждений.

