

О товаре:
- Длинна: 8000 мм.
- Ширина: 3090 мм.
- Высота: 500 мм.
- Вес: 16000 кг.
- ГОСТ, Серия: Серия 3.505.1-15 скачать
- Объем бетона: 6,4 м3
- Геометрический объем: 12,36 м3
Стандарт изготовления изделия: Серия 3.505.1-15
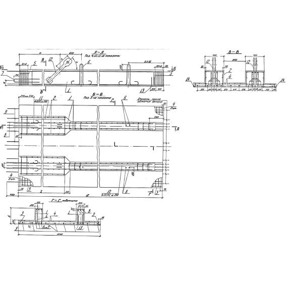
Элемент надстройки ЭН 80-5 АIIIв представляет собой высокопрочную монолитную железобетонную конструкцию, состоящую из прямоугольного основания и с расположенными на нем двух ребер сложной формы. Особенность данной конструкции - это наличие выпусков арматуры и закладных деталей, служащих для надежного соединения с примыкающими строительными изделиями. Такие элементы предназначены для возведения на реках, озерах и водохранилищах грузовых и пассажирских причальных набережных с высотой 11,5-15 метров в воду.
Элемент надстройки является важной частью конструкции набережной из заанкерованного таврового шпунта, и регламентировано их использовать в областях с температурой наружного воздуха наиболее холодной пятидневки до -40 градусов по Цельсию. Монтаж данных изделий осуществляется насухо. Более подробная информация по условиям эксплуатации, монтажным схемам прописана в серии изготовления.
Расшифровка маркировки
Согласно с рабочими чертежами каждое железобетонное изделие условно обозначается марками, которые состоят из числовых и буквенных индексов, образующих несколько групп обозначений. Из маркировки ЭН 80-5 АIIIв, можно узнать, что:
1. ЭН - элемент надстройки;
2. 80 - длина (дм);
3. 5 - высота сечения (дм);
4. АIIIв - класс напрягаемой арматуры.
На всех готовых элементах надстройки должны быть нанесены маркировочные надписи, позволяющие облегчить их сортировку, содержание на складе и монтаж. В них должны отображаться марка изделия и предприятия производителя, дата выпуска, отпускной вес, печать технического отдела.
Материалы и производство
Серия 3.505.1-15 содержит в себе требования и стандарты к изготовлению и к материалам железобетонных элементов надстройки ЭН 80-5 АIIIв. Их производство надлежит осуществлять заводами ЖБИ, с обязательным проведением контроля над качеством на всех стадиях технологического процесса.
Основной материал элементов - тяжелый гидротехнический бетон с маркой по прочности на сжатие М400. Марки бетона по морозостойкости и водонепроницаемости, мероприятия по антикоррозийной защите принимаются при привязке проекта исходя от степени агрессивного воздействия среды и воды в районе строительства в соответствии со СНиП II-28-73.
Армируются элементы плоскими каркасами и сетками, отдельными стержнями. Нормативным документом изготовления предусмотрено два вида армирования - с предварительно напрягаемой арматурой и без предварительно напряжения. Подбор арматуры происходит с учетом необходимых показателей трещиностойкости изделий и оснащенности заводов производителей.
Приемку готовых ЭН 80-5 АIIIв требуется проводить согласно с указаниями ГОСТ 13015-75. Испытания на прочность и раскрытие трещин рекомендуется выполнять неразрушительными методами. Изделия с отклонениями по толщине защитного слоя бетона, положения стальных деталей, превышающими допустимые показатели, считаются браком и к поставке не допускаются.
Хранение и транспортировка
Готовые элементы надстройки ЭН 80-5 АIIIв необходимо хранить на оборудованных складах и площадках. Конструкции при складировании и перевозке должны иметь опору на инвентарные прокладки, которые предотвращают их от опрокидывания и смещения.
Подъем элементов требуется проводить специальным транспортом, оснащенным захватными приспособлениями с соблюдением техники безопасности.
Перевозку железобетонных изделий автомобильным, железнодорожным транспортом следует выполнять в соответствии с нормами и правилами по перевозке строительных конструкций, а так же с техническими условиями погрузки и крепления грузов, действующих на этих видах транспорта.