О товаре:
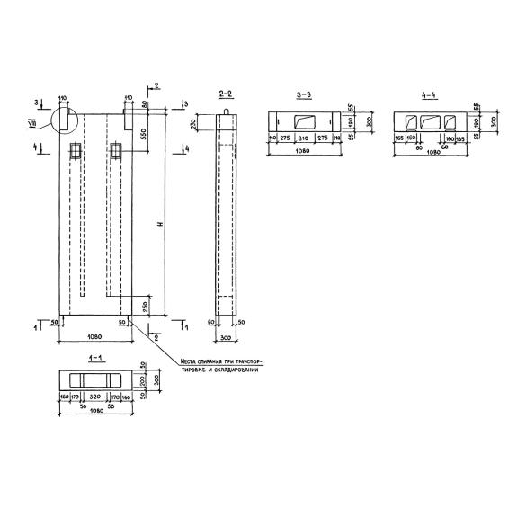
- Длинна: 1080 мм.
- Ширина: 300 мм.
- Высота: 3280 мм.
- Вес: 867 кг.
- ГОСТ, Серия: Серия 1.234.8-1 скачать
- Объем бетона: 0,657 м3
- Геометрический объем: 1,0627 м3
Стандарт изготовления изделия: Серия 1.234.8-1
Блок вентиляционный ВП 11-33 - это универсальное прямоугольное изделие на основе армированного бетона, обладающее внутренними вертикальными воздухопропускными каналами прямоугольной или круглой формы. Регламент изготовления блоков Серия 1.234.8-1 подразделяет конструкции на несколько видов, в зависимости от их расположения в каркасе здания. В целом вентиляционные строительные элементы предназначены для создания естественного циркулирования воздуха в зданиях и помещениях, и удалению благодаря этому, дыма, запахов и отработанного воздуха. ВП 11-33 могут использоваться при строительстве общественных зданий с нормальными температурами и нормальным режимом влажности.
Расшифровка маркировки
Широкий номенклатурный ряд строительных элементов, обуславливает наличие у каждой конструкции индивидуальной буквенно-числовой маркировки, при рассмотрении которой раскрывается следующая информация:
1. ВП - вентиляционный блок приточный поэтажного опирания;
2. 11 - округленная длина в дециметрах;
3. 33 - высота в дециметрах.
На изделии, прошедшем все этапы технологического процесса, прописываются необходимые сведенья, которые упрощают процесс эксплуатации. Данные сведенья включат в себя дату выпуска, товарный символ завода-изготовителя, массу железобетонной конструкции, штамп ОТК, подтверждающий проверку на качество и непосредственно маркировку.
Материалы и производство
Серия 1.234.8-1 содержит в себе основные правила, спецификации и чертежи для изготовления ВП 11-33. Главным материалом для производства вентиляционного блока является бетон на ГЦПВ проектной марки на сжатие М100. Для того чтобы бетонная смесь получилась заданных свойств, в не добавляют гипсовяжущие вещества, отвечающие по качеству определенным стандартам. К таким добавкам относятся: гипсовое вяжущее не ниже Г5, портландцемент, а также активные минеральные добавки осадочного происхождения. Нормируемая отпускная прочность бетона должна быть не ниже 70% от проектной прочности.
Для того чтобы предотвратить преждевременное разрушение бетонного изделия, в него добавляют прочную стальную арматуру, поверхность которой соединяясь с бетонной смесью, создаёт единый монолит. Так армирование ВП 11-33 происходит с помощью пространственного каркаса, собираемого из сварных сеток и плоских каркасов, которые в свою очередь изготавливаются из холодногнутой гладкой арматурной проволоки класса Вр-I.Для упрощения погрузочно-разгрузочных работ в тело блока укладываются монтажные петли из горячекатаной стали класса А-I. Арматура и закладные детали в обязательном порядке защищаются от коррозии с помощью особого покрытия.
Внешний вид и качество поверхности готового изделия должны соответствовать требованиям ГОСТ 13015.0-83*. Категория поверхности, которая предназначена под окраску должна быть А2, а нелицевая невидимая при использовании часть - А7.
Хранение и транспортировка
Сохранность железобетонной продукции во многом зависит от корректных мероприятий связанных со складированием и перевозкой. Изделия хранятся на стройплощадках в пирамидках, с размещением конструкций в их рабочем положении. Погрузочно-разгрузочные работы с блоками осуществляются с помощью монтажных петель, благодаря этому исключаются возможные повреждения. Перевозка ВП 11-33 происходит специализированным транспортом - панелевозом. Для защиты от атмосферных осадков во время хранения и транспортирования верхние торцы вентиляционных конструкций должны быть закрыты гидроизоляционными материалами.

