О товаре:
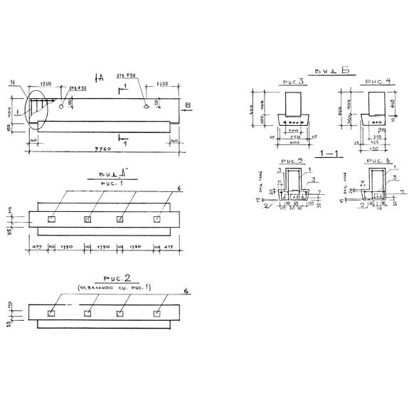
- Длинна: 5560 мм.
- Ширина: 600 мм.
- Высота: 600 мм.
- Вес: 3175 кг.
- ГОСТ, Серия: Серия 1.020-1 скачать
- Объем бетона: 1,27 м3
- Геометрический объем: 2,0016 м3
Стандарт изготовления изделия: Серия 1.020-1
Ригель 1РДТ 6-56-180 АтV (1.020-1) представляет собой особо прочный строительный элемент прямоугольной формы с наличием выступов, которые необходимы для опирания ребристых плит перекрытия. Железобетонные элементы запроектированы с двумя полками, на которые опираются плиты. Данные элементы активно применяются при возведении многоэтажных общественных и производственных зданий. Ригели выпускаются из материалов высочайшего качества, поэтому способны выдерживать колоссальные нагрузки. Схемы по установке индустриальных конструкций содержит Серия 1.020-1.
Расшифровка маркировки
Строительные изделия имеют индивидуальную маркировку, которая несет в себе определенные сведения о конкретной индустриальной конструкции. Марка прописывается, как в документации, так и на самом ригеле при помощи штампов и трафаретов. Краска для нанесения надписей используется влагоустойчивая, для того, чтобы продержалась на элементе долгое время. В подробностях рассмотрим расшифровку шифра 1РДТ 6-56-180 АтV (1.020-1):
1.1 - наличие подрезок для опоры на консоли колонны;
2. РДТ - тип элемента - ригель с одной полкой для плиты типа Т;
3. Т - для опирания плиты Т;
4. 6 - высотка сечения;
5. 56 - длина;
6. 180 - несущая способность;
7. AтV - тип армирования.
Помимо марок, на боковой поверхности проставляется знак производителя, дата выпуска, вес, штамп ОТК. Заводская марка не должна меняться.
Основные характеристики и изготовление
Ригели 1РДТ 6-56-180 АтV (1.020-1) выпускаются на специализированных предприятиях по производству сборного железобетона. Каждый этап производства очень тщательно контролируется. Индустриальные конструкции выпускаются в соответствии с нормами Серии 1.020-1. Ригели изготавливаются из тяжелого бетона марки М300, М350, М400, М500. Марка водонепроницаемости и морозостойкости зависит от климатических особенностей района постройки. Изделия армируются арматурными каркасами и сетками из стали класса AI-V, Aт-V по ГОСТ 5781-75, но так же допускается использовать сталь класса A-IIIв. Для сопряжения с другими деталями в тело строительных изделий закладываются закладные элементы, которые должны быть обработаны антикоррозионным раствором. Для удобства монтажа применяются монтажные петли. Отпускная прочность бетонам должна быть не менее 70% в теплое время года, а в зимний период не ниже 100%. Все изготовленные строительные элементы проверяется на прочность, жесткость и трещиностойкость. Внимательно проверяется геометрия по представленным рабочим чертежам и схемам. Обнажения арматуры не допускаются. Поверхность должна быть ровной и гладкой без дефектов. По итоговым проверкам все готовые конструкции получают сертификат соответствия, который подписывается отделом технического контроля. Изделия с браком отправляются на ремонт.
Транспортировка и хранение
Хранение ригелей 1РДТ 6-56-180 АтV (1.020-1) следует на складской площадке в штабелях высотой не более 2,5 метров. Между рядами необходимо прокладывать инвертарный материал в виде подкладок и прокладок, которые предохраняют от повреждений. Погрузочно-разгрузочные манипуляции проводятся на заранее подготовленной территории. Индустриальные конструкции не разрешается сбрасывать и перетаскивать волоком по земле. Перевозка строительных изделий осуществляется на специализированном транспорте, при этом все ригели должны быть надежно зафиксированы. Соблюдая требования регламента, заказчик получит железобетонные изделия надлежащего качества.

