О товаре:
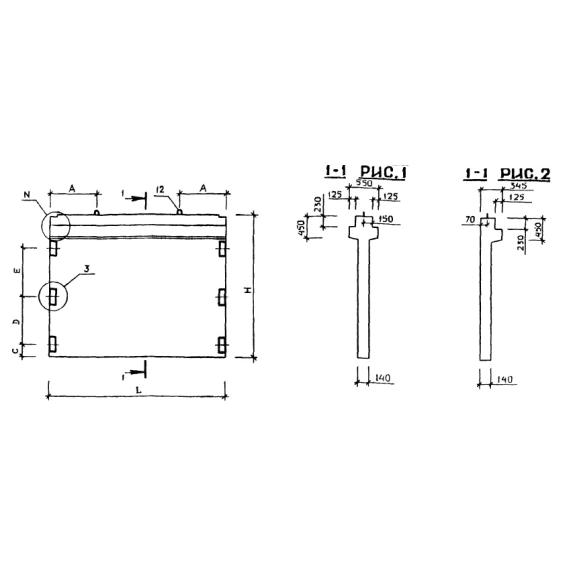
- Длинна: 1180 мм.
- Ширина: 345 мм.
- Высота: 3270 мм.
- Вес: 1547 кг.
- ГОСТ, Серия: Серия 1.020-1 скачать
- Объем бетона: 0,619 м3
- Геометрический объем: 1,3312 м3
Стандарт изготовления изделия: Серия 1.020-1
Диафрагма жесткости 1Д 12-33 (1.020-1) - это унифицированное и высокопрочное строительное изделие многоэтажных зданий общественного и индустриального назначения с высотой этажа 2.8 и 3.3 метра. Элементы запроектированы своеобразной формы, сплошными и с проемами. Самое главное и основное предназначение диафрагм - это способность воспринимать и передавать давление фундаменту, а так же защищают сооружения, чтобы они не повредились при сильных ветровых нагрузках. Рабочие чертежи и установка данных изделий отражены в Серии 1.020-1. Огнестойкость индустриальных конструкций составляет два часа.
Расшифровка маркировки
Нормативный документ Серия 1.020-1 содержит подробную расшифровку маркировочного шифра 1Д 12-33 (1.020-1). Марки заводские ни в коем случае не изменяются, прописываются на боковой стороне строительного элемента и во всех необходимых технических документах. Для тог, чтобы иметь конкретное представление о данном железобетонном изделии, рассмотрим значение каждой буквы и цифры:
1.1Д - тип изделия - диафрагма с одной полкой (1ДП - диафрагма с полками, которые расположены по середине, 1ДПК - проемы располагаются с края;
2. 12 - длина;
3. 33 - высота.
Дополнительно рядом с маркой ставят печать отдела технического контроля, дату изготовления, товарный знак производителя, массу конструкции. Используют специальную краску. Трафареты и штампы.
Основные характеристики и изготовление
В нормативном документе Серии 1.020-1 прописаны основные требования по производству диафрагм жесткости 1Д 12-33 (1.020-1). За прочную основу принимается бетон марки М300. Марка бетона по морозостойкости и водонепроницаемости назначается в индивидуальном порядке, в зависимости от климатических особенностей района постройки. Железобетонные изделия обладают отличной дополнительной прочностью за счет сложного армирования. Детали армируются пространственными каркасами и отдельными стержнями, которые соединяются между собой контактной точечной сваркой, запроектирована сталь класса A-III, A-I по ГОСТ 5781-75. Для установки конструкций, для транспортировки, а так же для сопряжения с другими элементами в тело индустриальных конструкций закладываются монтажные петли и закладные детали из горячекатаной стали класса A-I. Все металлические элементы обрабатываются антикоррозионным составом. Отпускная прочность бетона, должна полностью соответствовать показателю проектной марки, установленная регламентом. Диафрагмы жесткости - это индустриальные изделия высочайшей ответственности, в следствии этого, к их качеству уделяется особое внимание. Элементы проверяют на прочность, жесткость и трещиностойкость. Обнажение арматуры не допускается. Поверхность должна быть ровной, гладкой и без каких либо дефектов. Геометрия проверяется в соответствии с рабочими чертежами. По итогу контрольных проверок выписывают паспорт качеству. В данном документе должна быть указана основная информация о сырье и о производителе.
Транспортировка и хранение
Складирование и транспортировка железобетонных диафрагм 1Д 12-33 (1.020-1) осуществляется в соответствии с определенными правилами, которые прописаны в Серии 1.020-1. Элементы хранят на складской территории в рабочем положении, разложенные по маркам. Транспортировка осуществляется на специализированном транспорте. Для того, чтобы избежать опрокидывания, либо смещения диафрагм во время движения транспорта, их следует тщательно закрепить фиксаторами. Вся индустриальная продукция доставляется к заказчику с сопроводительной документацией.

