О товаре:
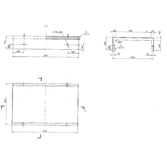
- Длинна: 2970 мм.
- Ширина: 1840 мм.
- Высота: 570 мм.
- Вес: 2325 кг.
- ГОСТ, Серия: Серия Б3.006.1-1.03 скачать
- Объем бетона: 0,9 м3
- Геометрический объем: 3,1149 м3
Стандарт изготовления изделия: Серия Б3.006.1-1.03
Лоток Л 6-18-30-80 (Б3.006.1-1.03) унифицированный железобетонный элемент, имеющий форму в виде буквы «П». На торцевых сторонах изделия, на уровне строповочных петель, расположены сквозные круглые отверстия, диаметром 40 мм. Элементы запроектированы с полезной длиной 1500 и 3000 мм. Допускается производство лотков с длиной 4500 и 6000 мм.
Индустриальные лотковые элементы широко применяются при возведении сборных железобетонных каналов и тоннелей. Они прокладываются под землей и служат для защиты размещаемых внутри трубопроводов различного назначения. Допускается укладка электрокабеля и электрошин. Не разрешается использовать лотки в качестве каналов для транспортировки жидкостей. При разработке элементов учитывались требования СИБ 5.03.01-02. Перед принятием в эксплуатацию обязательно изучение окружающего грунта на наличие подземных вод. Изделия удовлетворяют требования СТБ 1109-98.
Маркировочное обозначение
На поверхность конструкций наносятся специальной масляной краской уникальные маркировочные обозначения. Они состоят из цифр и букв и отражают ключевые характеристики конструкций, что в значительной степени сокращает время поиска необходимых строительных материалов. Символы Л 6-18-30-80 (Б3.006.1-1.03) имеют следующее значение:
1. Л - лоток;
2. 6 - высота (дм);
3. 18 - ширина (дм);
4. 30 - длина (дм);
5. 80 - несущая способность.
Маркировочные обозначения должны хорошо просматриваться, быть читабельными. Запрещено вносить произвольные изменения в маркировочные знаки. Дополнительно разрешено указывать массу, дату производства, штамп ОТК и информацию об изготовителе.
Особенности производства
По условиям Серии Б3.006.1-1.03 для производства железобетонных лотков Л 6-18-30-80 (Б3.006.1-1.03) используется тяжелый бетон с классом по прочности на сжатие В25 и В30. Показатели морозостойкости и водонепроницаемости подбираются под конкретные условия индивидуально под каждый типовой проект. Важно обеспечить величину защитного бетонного слоя до поверхности рабочего армирования.
Изделия должны выдерживать колоссальные нагрузки. Для этого в их составе предусмотрены объемные арматурные каркасы и сетки, из стали классов А240 и А400 по ГОСТ 5781-82. Допускается использование стали класса Ат500с по ТУ РБ 04778771-001-97. Для сборки каркасов разрешается использовать электродуговую сварку по ГОСТ 14098-91. Все металлические составляющие в обязательном порядке проходят противокоррозионную обработку специальными составами.
Контрольные испытания готовых лотковых элементов необходимо проводить по ГОСТ 8829-82 и СТБ 1109. Геометрические пропорции должны соответствовать представленным на рабочих чертежах параметрам. Допустимая величина трещин не должна превышать 0,2 мм. Оголенное армирование, сколы и крупные трещины свидетельствуют о необходимости отправки изделий в брак. Прошедшие испытания конструкции снабжаются сертификатами соответствия и допускаются к отправке конечному потребителю.
Транспортировка и хранение
Перевозка и складирование железобетонных лотков Л 6-18-30-80 (Б3.006.1-1.03) должны осуществляться с безукоризненным соблюдением требований СНиП 3.03.01-87 и СНиП III-4-80, а также правил и норм по техники безопасности. Укладка элементов производится продольными ребрами вниз. Высота штабеля не должна превышать трех изделий. Обязательно размещение инвентарных прокладок между уровнями для предотвращения трения и возникновения механических повреждений. Следует использовать специализированное оборудование для осуществления погрузочно-разгрузочных работ.

