О товаре:
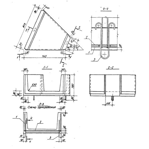
- Длинна: 815 мм.
- Ширина: 740 мм.
- Высота: 380 мм.
- Вес: 175 кг.
- ГОСТ, Серия: ТПР 320-069.86 скачать
- Объем бетона: 0,09 м3
- Геометрический объем: 0,2292 м3
Стандарт изготовления изделия: ТПР 320-069.86
Лотки водосточные ВП 45-1 (ТПР 320-069.86) представляют собой высокопрочные строительные материалы. Конструкции имеют прямоугольную форму с «П» - образным поперечным сечением. Для упрощения погрузочно-разгрузочных работ и монтажа на теле изделия присутствует строповочная петля. Дополнительно в элементах могут быть расположены отверстия. Исходя из типоразмера и сферы использования, конструкция может иметь трапециевидную форму сечения, а также ряд других отличительных особенностей.
Применяются унифицированные водосточные лотки при обустройстве городских улиц и благоустройстве территорий. Изделия необходимы для формирования канала, предназначенного для отвода атмосферной жидкости. Элементы рассчитаны на восприятие горизонтального и вертикального давления грунта, а также подвижную нагрузку от транспортных средств на автомобильных дорогах, равную Н10. Конструкции подходят для водостоков закрытого и открытого типов. При разработке строительных материалов учитывались требования действующих нормативно-правовых документов.
Маркировочное обозначение
Для быстроты обнаружения необходимых строительных материалов в номенклатурных рядах и на складах были введены специальные шифры, отражающие ключевые особенности конструкции. Их наносят масляной краской, устойчивой к вредоносному воздействию влажности и перепадам температур. Совокупность символов ВП 45-1 (ТПР 320-069.86) имеет следующую расшифровку:
1. ВП - тип конструкции - водосточный лоток (ВР - рядовой, ВП - поворотный);
2. 45 - угол поворота;
3. 1 - конструктивные особенности.
Не допускается внесение произвольных изменений в маркировочные знаки. Дополнительно следует указывать массу, дату производства и штамп ОТК.
Особенности производства
Все тонкости и нюансы производственного процесса водосточных лотков ВП 45-1 (ТПР 320-069.86) подробно прописаны в типовых проектных решениях ТПР 320-069-86. Достичь высокого качества готовой продукции позволяет производство изделий в стальных опалубках, гарантирующих точные геометрические пропорции элементов. В качестве главного сырья следует использовать тяжелый бетон марки М200 по прочности на сжатие с морозостойкости не ниже F150. Водонепроницаемость конструкций должна быть не менее W4.
Для достижения высокой прочности строительных материалов в их состав включается армирование из специальных сеток. Для его производства рекомендуется использовать сталь класса AIII марки 25Г2С, отвечающую требованиям ГОСТ 5781-82, а также холоднотянутую проволоку класса Вр-1 по ГОСТ 6727-80. Бетонирование следует производить в горизонтальном положении, стенками вниз, а для выемки из опалубки использовать специальные монтажные петли, для производства которых применяется класс стали AI марки ВСт3сп2.
Перед поставкой конечному потребителю изделия проходят приемо-сдаточные испытания, результаты которых фиксируются в паспортах, предоставляемых заказчику. Не допускаются на поверхности конструкции оголенного армирования, сколов, трещин и раковин.
Транспортировка и хранение
Складирование и транспортировку лотковых элементов ВП 45-1 (ТПР 320-069.86) необходимо осуществлять с соблюдением правил и норм по технике безопасности. Укладка должна производиться в штабеля не более 3 штук по высоте. Обязательно использование инвентарных деревянных подкладочных материалов и обеспечение надежной опоры для предотвращения возникновения механических повреждений и соприкосновения с грунтом. Важно надежно фиксировать конструкций в кузове транспортного средства до начала движения.

