О товаре:
- Длинна: 1200 мм.
- Ширина: 100 мм.
- Высота: 100 мм.
- Вес: 30 кг.
- ГОСТ, Серия: Альбом А11-2011 скачать
- Объем бетона: 0,012 м3
- Геометрический объем: 0,012 м3
Стандарт изготовления изделия: Альбом А11-2011
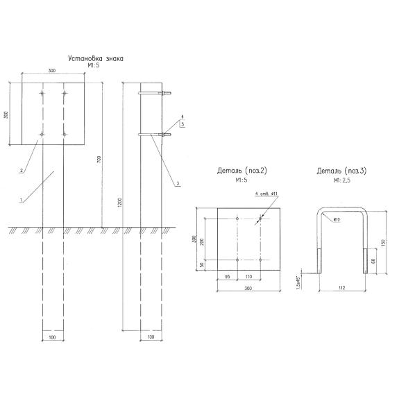
Столбик бетонный (Альбом А11-2011) это высокопрочный прямоугольный вытянутый брусок, имеющий квадратную форму поперечного сечения. В верхней части конструкции располагается специальная закладная деталь - металлический лист, предназначенный для отражения необходимой информации.
Применяются унифицированные бетонные столбики при прокладке кабелей напряжением до 35кВ в траншеях с применением двустенных гофрированных труб. Особенно популярно использование изделий в недостроенных местах в качестве составляющей части опознавательного знака. Элементы погружаются в землю на определенном расстоянии друг от друга, и используется в качестве средств передачи информации о проложенных в грунте коммуникациях. Применение бетонных конструкций в современном строительстве позволяет защитить проложенные в земле коммуникация от механических повреждений в случае необходимости проведения раскопок и других операции, связанных с бурением грунта. Установку столбиков рекомендуется производить не реже, чем через каждые 500м. Для обеспечения продолжительного эксплуатационного срока службы конструкций рекомендуется покрывать погружаемую в землю часть изделия специальными гидроизоляционными составами. Глубина заложения в грунт должна составлять минимум 50см.
Маркировочное обозначение
Для лёгкого обнаружения необходимых строительных конструкций проектными институтами были введены специальные маркировочные символы. Совокупность знаков Столбик отражают следующие ключевые характеристики:
1. Столбик - тип изделия.
Не допускается вносить произвольные изменения в маркировочные знаки, это может привести к ошибкам при подборе строительных материалов.
Особенности производства
С подробным описанием процесса производства сигнальных столбиков можно ознакомиться в нормативном документе Альбоме А11-2011. Согласно условиям регламента в качестве главного материала следует использовать тяжёлый бетон марки М400 по прочности на сжатие по ГОСТ 26633. Морозостойкость F300 позволяет эксплуатировать конструкции в условиях агрессивной среды и низких температур. Закладные элементы необходимо изготавливать из полосовой стали размером 300х300х3 мм по ГОСТ 19903-74. Скобу для закрепления закладных деталей следует производить из круглой стали диаметром 10 мм по ГОСТ 2593-2016. Для надежного крепления металлических конструкций к железобетонному столбику дополнительно необходимо использовать специальные шайбы, соответствующие ГОСТ 11371-78, и гайки, изготавливаемые по ГОСТ 5915-70. Все металлические составляющие в обязательном порядке должны покрываться специальными противокоррозионными составами, продлевающими эксплуатационный срок, и предотвращающими последствия вредоносного воздействия окружающей среды. Важен поэтапный контроль на всех стадиях производства конструкций для гарантии высокого качества готовой продукции.
Транспортировка и хранение
Складирование бетонных столбиков необходимо осуществлять на заранее подготовленных складских территориях. Поверхность для будущей укладки должна быть ровная с небольшим уклоном для отвода сточных вод. Укладку следует производить в штабеля с использованием деревянных инвентарных подкладок, укладываемых строго одна над другой по вертикали. Высота штабеля должно соответствовать требованиям норм безопасности и не превышать 2 м. Между штабелями необходимо обеспечить удобные подъездные пути для перемещения специализированной техники и лёгкого осуществления погрузочно-разгрузочных работ.

