О товаре:
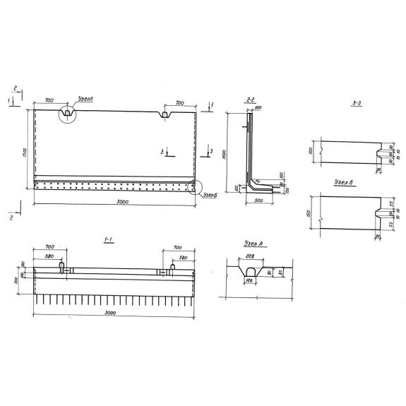
- Длинна: 3000 мм.
- Ширина: 500 мм.
- Высота: 1500 мм.
- Вес: 1650 кг.
- ГОСТ, Серия: Серия 3.820.1-73 скачать
- Объем бетона: 0,66 м3
- Геометрический объем: 2,25 м3
Стандарт изготовления изделия: Серия 3.820.1-73
Г-образные конструкции Г 15-30-3 это строительные материалы из тяжелого армированного металлическими каркасами бетона, которые служат для укрепления водохозяйственных систем. В регионах с чрезмерной влажностью или наоборот засушливым климатом мелиоративное строительство является крайне важным аспектом сельского хозяйства. Элементы каналов и прочих водоводных систем должны отвечать высоким показателям прочности, водостойкости и долговечности, поэтому типовые конструкции Г 15-30-3 производят в строго регламентированных условиях современно оборудованных заводов. Их номенклатурный ряд включает большое разнообразие типоразмеров, а эксплуатационные характеристики позволяют использовать такие изделия даже в самых суровых климатических зонах.
1. Варианты маркировки
Маркировка ЖБ-изделий, как правило, содержит ряд буквенно-цифровых символов, стоящих в определенной последовательности. Они указывают на типоразмеры и основные габаритные показатели материалов и служат для упрощения технических документов, обозначая конкретные наименования в обширной номенклатуре типовых блоков. Маркировка железобетонных Г-образных конструкций может писаться несколькими способами:
1. Г 15-30-1;
2. Г 15-30-2;
3. Г 15-30-3.
2. Основная сфера применения
Г-образные конструкции многоцелевого назначения Г 15-30-3 служат в качестве строительных материалов для возведения мелиоративных систем. То есть, с помощью них организовывают оросительные и осушительные установки, они могут служить основными опорными элементами для рыбных садков или оголовков труб. Задействование данных изделий актуально практически в любых климатических условиях с возможной сейсмической активностью до 8 баллов по шкале Рихтера. Основными условиями применения является наличие неагрессивной газовой среды. Конструкции, предназначенные для работы под воздействием агрессивной среды, проходят дополнительную антикоррозийную обработку в соответствии со СНиП 2.03.11-85.
3. Обозначение маркировка изделия
Ход маркирования рассматриваемых нами изделий определяется действующим нормативным документом Серия 3.820.1-73. Согласно с прописанными там требованиями марка Г-образной конструкции Г 15-30-3 расшифровывается следующим образом:
1. Г – основной тип конструкции;
2. 15 – ширина в дм.;
3. 30 – длина в дм.;
4. 3 – вторая несущая способность.
Вдобавок к основным обозначениям при нанесении маркировки непосредственно на готовую продукцию указывают также наименование компании-производителя и дату выпуска партии. Конструкция каждого типоразмера обладает уникальными размерными показателями. Помимо ключевых, марка Г 15-30-3 характеризуется такими дополнительными значениями:
Длина = 3000;
Ширина = 500;
Высота = 1500;
Вес = 1650;
Объем бетона = 0,66;
Геометрический объем = 2,25.
4. Изготовление и основные характеристики
Железобетонные Г-образные конструкции для водохозяйственного строительства Г 15-30-3 изготавливаются по поточно-агрегатной технологии. Формование осуществляется в металлических формах в полном соответствии с рабочими чертежами действующих регламентов. Согласно с Серией 3.820.1-73 бетон, который используется для изготовления, должен соответствовать классу В15 по прочности на сжатие и марке W6 по водонепроницаемости. За счет применения престижных сортов портландцемента готовые изделия не восприимчивы к перепадам температуры, обладают высокой трещиностойкостью и могут выдерживать вплоть до 150 циклов полного замораживания и размораживания.
Металлический каркас конструкций отвечает за уровень их несущей способности. Элементами усиления служит стержневая сталь марок А-І, А-ІІІ, Ат-ІІІс и Ат-ІVс. Отдельные прутки соединяют в сетки путем контактно-точечной сварки. В тело Г-образных блоков закладывают монтажные петли, а также анкеры и выпуски разных типов для последующего крепления изделий с соседними элементами. Толщина защитного слоя бетона, которым покрывают каркас, должна составлять не менее 20 мм. Наличие всех необходимых показателей и отсутствие дефектов на поверхности конструкций проверяют в специальных лабораториях во время прохождения готовыми партиями приемо-сдаточных испытаний.
5. Транспортировка и хранение
Транспортировка и складирование типовых Г-образных конструкций Г 15-30-3 затрудняется их большими габаритами и нестандартной формой, исключающей возможность хранение штабелями. На оборудованных площадках с подготовленной выровненной основой изделия выкладывают на деревянные доски в один ряд. Очень важно соблюдать необходимую ширину проходов между такими рядами, чтобы подъемная техника имела свободный доступ к каждому отдельно взятому блоку. Правила безопасности запрещают погрузку сбросом или волоком. Необходимо правильно распределять нагрузку между строповочными петлями конструкции и помещать ее в кузов максимально плавно и мягко. После погрузки изделия крепко фиксируют и обездвиживают на время перевозки.

