О товаре:
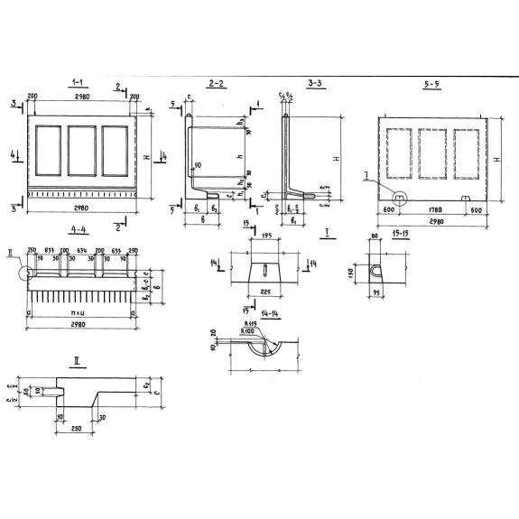
- Длинна: 2980 мм.
- Ширина: 600 мм.
- Высота: 2280 мм.
- Вес: 3000 кг.
- ГОСТ, Серия: Серия 3.006.1-3/83 скачать
- Объем бетона: 1,2 м3
- Геометрический объем: 4,0766 м3
Стандарт изготовления изделия: Серия 3.006.1-3/83
Блоки тоннелей стеновые СБ 21-5 – это обязательные крупногабаритные железобетонные элементы сборных несущих конструкций подземных сооружений тоннельного типа. Для их изготовления используется бетон тяжелых марок. Армированные металлическими каркасами и сетками, они имеют Г- образную достаточно прочную форму. Для обеспечения надежного соединения с плитами днища на стыковых гранях железобетонных стеновых блоков предусмотрены выступающие элементы армирующей сетки. Их сращивание производится методом омоноличивания стыков бетонным раствором марки 300. Для уменьшения веса с внутренней стороны на вертикальной части блока выполняются три понижения. Их глубина рассчитана таким образом, что не ухудшает прочностных характеристик железобетонных блоков тоннельных стеновых СБ 21-5. Их производство осуществляется с соблюдением требований технических нормативов и государственных стандартов. Документом, описывающим все основные правила изготовления, приемки готовых изделий и монтажа в тоннелях, выступает существующая Серия 3.006.1-3/83.
1. Варианты маркировки
На каждое железобетонное изделие обязательно наносится условное обозначение. Оно необходимо для нескольких целей: упрощения записи в строительной технической документации, простоты сортировки готовой продукции, кратко предоставляет всю информацию о назначении и эксплуатационных параметрах этого изделия. Блоки тоннелей стеновые СБ 21-5 маркируются по буквенно-цифровой системе несколькими вариантами, отвечающими требованиям ГОСТа 13015.2-81.
1. СБ 21-12;
2. СБ 21-15;
3. СБ 21-3;
4. СБ 21-5;
5. СБ 21-8.
3. Основная сфера применения
Железобетонные блоки тоннелей стеновые СБ 21-5 применяются для строительства подземных сооружений мелкого заложения, монтируемых открытым способом. Они используются для обустройства тоннельных пешеходных переходов либо прокладки различных инженерных коммуникаций, включая транспортеры. Железобетонные стеновые блоки Серии 3.006.1-3/83 являются неотъемлемыми элементами подземных конструкции тоннелей. Они используются для укрепления внутренних поверхностей выработки и предания ей удобного для эксплуатации очертания. Совместно с другими элементами тоннельных сооружений блоки тоннелей стеновые СБ 21-5 должны выдерживать давление окружающих грунтов и подземных вод, периодические нагрузки с поверхности при неглубоком заложении тоннеля, возможные сейсмические воздействия. Вследствие этого они предназначены обеспечивать достаточную устойчивость, прочность и водонепроницаемость. Крупногабаритные железобетонные стеновые блоки между собой либо с другими элементами конструкции тоннелей соединяются методом омоноличивания за счет выпусков арматуры.
3. Обозначение маркировка изделия
Цифробуквенная система маркировки каждого изделия предоставляет информацию: для какой части конструкции оно используется, какая у него высота, какую предельную нагрузку может выдержать. Ее наносят на внешнюю поверхность. Попробуем, расшифровать условное обозначение на блоке тоннелей стеновом СБ 21-5 Серии 3.006.1-3/83:
1. СБ – стеновой блок тоннеля;
2. 21 – его высота составляет 2,1 м;
3. 5 – выдерживает допустимую нагрузку 5 тс/м2.
Выбирая крупногабаритные железобетонные блоки тоннелей стеновые СБ 21-5 для строительства сооружений подземного типа с неглубоким заложением, собираемых открытым методом, желательно учитывать и другие технические параметры:
Длина = 2980;
Ширина = JBI_WIDTH;
Высота = 2280;
Вес = 3000;
Объем бетона = 1,2;
Геометрический объем = 4,0766..
4. Изготовление и основные характеристики
Блоки тоннелей стеновые СБ 21-5 – это типичное крупногабаритное железобетонное изделия для сборки подземных тоннелей с неглубоким заложением. Их изготовление регламентируется требованиями определенных технических документов. Специально для них разработана Серия 3.006.1-3/83, содержащая все необходимые рабочие чертежи на само изделие и армирующий каркас, условия их изготовления, порядок приемки и условия хранения. А в ГОСТе 13015.2-81 указаны правила буквеноцифровой системы маркировки и место ее нанесения. Для изготовления армирующего каркаса рекомендуется использовать арматуру класса А-I либо Вр-I. Его заливают раствором, подготовленного на основе бетона марки М 300. Дополнительные сетки прикрепляются к каркасу методом приварки либо монтажной вязки. Для удобства транспортировки крупногабаритных стеновых тоннельных блоков устанавливаются две петли из горячекатаной арматуры. Для их изготовления применяются стальные формы.
5. Транспортировка и хранение
Правила складирования и транспортировки крупногабаритных железобетонных блоков тоннелей стеновых СБ 21-5 приведены в технической документации Серии 3.006.1-3/83. Благодаря нанесенному условному обозначению на внешнюю сторону изделий, есть возможность быстро рассортировать их после изготовления. Складировать стеновые блоки можно только в два ряда с прокладкой деревянных брусков с толщиной не меньше 80 мм. При транспортировке их необходимо надежно фиксировать, исключая возможность горизонтального смещения во время движения.

