О товаре:
- Длинна: 2990 мм.
- Ширина: 2200 мм.
- Высота: 180 мм.
- Вес: 3030 кг.
- ГОСТ, Серия: Серия 3.006.1-3/83 скачать
- Объем бетона: 1,21 м3
- Геометрический объем: 1,184 м3
Стандарт изготовления изделия: Серия 3.006.1-3/83
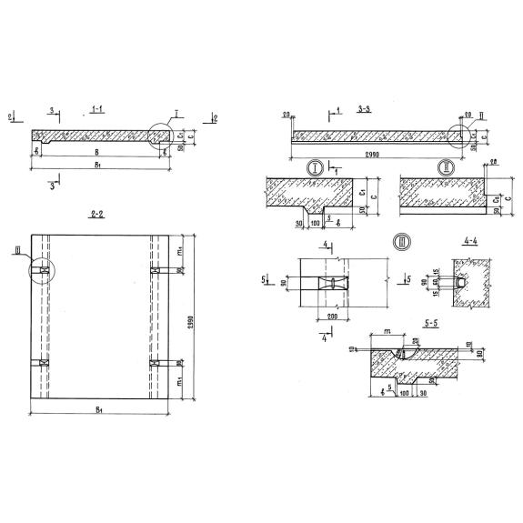
Плиты перекрытия тоннелей ПТ 18-11 являются обязательными бетонными армированными составляющими используемые при сборке подземных сооружений тоннельного типа с применением угловых стеновых панелей. В основном на любом ЖБИ предприятии изготавливают в виде крупногабаритных плоских панелей достаточной большой толщины около 200 мм. На коротких гранях предусмотрены уступы позволяющие обеспечить надежную заделку стыков с соседними узлами постройки. Такая конструкция деталей, в сочетании с методом омоноличивания бетонными смесями, дает возможность гарантированно исключить проникновения влаги от грунтовых вод либо разнообразных атмосферных осадков во внутреннее пространство тоннелей. Два выступа на нижней поверхности плит выступают в качестве своеобразных ребер. Расстояние между ними позволяет обеспечить заданную ширину пролетов подземных строений. А выступающими от них краями железобетонные сборочные узлы опираются на угловые стеновые панели, обеспечивая надежное укрытие тоннелей.
Учитывая внушительный вес плит, на наружной поверхности этих ж/б изделий предусмотрены четыре строповочные стальные петли, упрощающие выполнение работ по их перемещению и монтажу.
В проектной Серии 3.006.1-3/83 есть возможность ознакомиться с чертежами типовых тоннельных плит перекрытия разнообразных конструкций и различных размеров.
1. Варианты маркировки
Любой изготовленный ж/б узел для подземных тоннелей обязательно кодируется с использованием буквенно-цифровой условная аббревиатуры. В нормативном документе - Серии 3.006.1-3/83 можно посмотреть несколько самых популярных вариантов маркировки плит перекрытия тоннелей.
1. ПТ 18-11;
2. ПТ 18-12;
3. ПТ 18-15;
4. ПТ 18-3;
5. ПТ 18-5;
6. ПТ 18-8.
2. Основная сфера применения
Бетонные армированные сталью плиты перекрытия тоннелей ПТ 18-11 пользуются большой востребованность для обустройства построек неглубоко заложения, собираемых открытым способом. Такие подземные сооружения широко применяют для прокладки разнообразных инженерных коммуникаций, включая транспортерные линии. Также их можно использовать в качестве пешеходных переходов на индустриальных предприятиях. Но эти сооружения нельзя применять для непосредственной транспортировки жидкостей.
Армированные бетонные плиты накрытия подземных конструкций Серии 3.006.1-3/83 являются обязательными элементами сборки подземных тоннелей. В грамотном сочетании с другими узлами сооружений под землей плиты перекрытия тоннеля ПТ 18-11 должны обеспечивать гарантированное исключение проникновения грунтовых вод и влаги от различных атмосферных осадков. Также они обязаны надежно противостоять давлению от насыпных грунтов и вибрациям от возможных сейсмических колебаний. Вследствие этого они рассчитаны гарантировать достаточно высокие эксплуатационные характеристики.
Подземные постройки тоннельного типа с установленными бетонными армированными сталью крупногабаритными плитами перекрытия тоннелей специалисты рекомендуют возводить в почвах со средой, имеющую слабую степень агрессивности.
3. Обозначение маркировка изделия
Любые произведенные детали для сборки подземных сооружений тоннельного вида в обязательном порядке кодируются с использованием буквенно-цифровой аббревиатуры согласно рекомендаций проектной Серии 3.006.1-3/83. Эта условная кодировка предоставляет краткую информацию потребителю: буквенной комбинацией о сфере применения произведенной продукции, группы цифр разделенные «дефисом» – ширину пролета тоннеля в дм и допустимую расчетную нагрузку выдерживаемую изделием в тс/м2.
Такая условная аббревиатура, нанесенная на одну из граней плит ПТ 18-11, информирует о том, что это;
1. ПТ – плита перекрытия для тоннелей;
2. 18 – устанавливаются в пролетах шириной 1,8 м;
3. 11 – показывает, что детали способны выдерживать нагрузку в 11 тс/м2.
Плиты накрытия подземных строений обладают следующими эксплуатационными характеристиками:
Длина = 2990;
Ширина = 2200;
Высота = 180;
Вес = 3030;
Объем бетона = 1,21;
Геометрический объем = 1,184.
На одной из поверхностей плиты специалисты рекомендуют дополнительно к основной маркировке наносить вес, дату изготовления, штамп ОТК.
4. Изготовление и основные характеристики
Для заливки железобетонных плит перекрытия тоннелей ПТ 18-11 применяют тяжелый бетон марки М 300. Такая смесь позволяет обеспечить выпускаемой продукции водонепроницаемость на уровне W4 и морозостойкость не ниже F300. Наличие в структуре таких изделий усиливающих сеток, собранных в плоскостные каркасы, дает возможность достичь высоких параметров надежности и прочности. Их изготавливают из горячекатаной арматуру круглой формы классов А-I и А-III. Все металлические детали должны быть обработаны антикоррозионным покрытием и защищены слоем бетона не меньше 3см. Специалисты при изготовлении плит перекрытия для тоннелей в своей деятельности основываются на рекомендации нормативного документа – Серия 3.006.1-3/83.
5. Транспортировка и хранение
Как и все крупногабаритные плоские детали тоннельные плиты ПТ 18-11 рекомендуется складировать и перевозить только в горизонтальном положении прокладывая между ними по два деревянных бруса. Подробнее с особенностями транспортировки и хранения таких изделий можно посмотреть в Серии 3.006.1-3/83.

