Отгружено ЖБИ: всего -
000 000
тонн; за 2025 год -
00 000
тонн
Посмотреть
Заключено договоров: всего -
0 000
шт.; за 2025 год -
000
шт.
Единый номер:
8 (800) 500-22-52
Выберите город
Благовещенск
Владивосток
Екатеринбург
Иркутск
Казань
Кемерово
Краснодар
Красноярск
Москва
Нижний Новгород
Новосибирск
Омск
Пермь
Ростов-на-Дону
Самара
Санкт-Петербург
Симферополь
Сургут
Тюмень
Хабаровск
Челябинск
Ваш город «
»?
Да
Нет
Выберите город
Заказ онлайн
Корзина:
0 шт.
Корзина
0
шт.
Расчитать
О нас
О компании
Документация
Судебная практика
Преимущества
Вопросы/ответы
Портфолио
Работа в цифрах
Прямой эфир с производства
Каталог
Каталог по группам
Условия доставки
Контакты
Найти
Каталог по группам
Главная
Каталог по группам
Плиты перекрытия
Плиты ребристые железобетонные
Плиты ребристые Серия ИИС 24-1
Панели кровли ребристые Альбом ВИ 37-76
Панели перекрытий ребристые Альбом ВИ 37-76
Панели перекрытий ребристые Серия ИИ 04-4
Панели перекрытия ребристые Серия 1.220.1-2
Панели покрытий ребристые Серия 1.165.1-13с
Панели покрытий ребристые Серия 1.165.1-14с
Панели ребристые Серия 1.090.1-1/88
Панели ребристые Серия 1.090.1-7с
Панели ребристые Серия 1.090.1-9м
Панели ребристые Серия 1.165.1-15 (1.165-6)
Панели ребристые Серия 1.242-1
Панели ребристые Серия 1.242.1-3
Панели ребристые Серия 1.432-10
Панели ребристые Серия Б1.142-1
Панели ребристые Серия ИИ 01-02
Панели ребристые Серия ИИ 03-02 Альбом 15-64
Панели ребристые Серия ИИ 41
Панели ребристые Серия СТ 02-33
Плиты перекрытий Серия 1.042.1-2
Плиты перекрытий Серия 1.400.1-22
Плиты перекрытий Серия ИИ 29-3
Плиты перекрытий ребристые Серия 1-82
Плиты перекрытий ребристые Серия 86 и 85
Плиты перекрытия Серия ИС 01-19
Плиты перекрытия ребристые Серия 1.020-1
Плиты перекрытия ребристые Серия 1.090.1-2с
Плиты покрытий ГОСТ 7741-55
Плиты покрытий Серия 1.165.1-16
Плиты покрытий Серия 1.165.1-17
Плиты покрытий Серия 1.165.1-18
Плиты покрытий Серия 1.220-1
Плиты покрытий Серия 1.465.1-14
Плиты покрытий доборные Серия 1.865.1-4/89
Плиты покрытия Серия 3.702-1/79
Плиты покрытия Серия 3.702.1-4
Плиты покрытия ТП 901-4-63.83
Плиты покрытия комплексные Шифр 912
Плиты ребристые 3х6 м Серия 1.465-7
Плиты ребристые 3х6 м Серия 1.865.1-4/84
Плиты ребристые 3х6 м серия 1.065.1-2.94 ( 1.865.1-4/89, 1.865.1-4/84, 1.865-1 )
Плиты ребристые ГОСТ 21506-2013
Плиты ребристые ГОСТ 21506-87
Плиты ребристые ГОСТ 22701-77
Плиты ребристые ГОСТ 24155-2016
Плиты ребристые ГОСТ 24155-80
Плиты ребристые ГОСТ 27215-2013
Плиты ребристые ГОСТ 27215-87
Плиты ребристые ГОСТ 9491-60
Плиты ребристые Серия 1.041-1
Плиты ребристые Серия 1.042.1-4
Плиты ребристые Серия 1.090.1-1
Плиты ребристые Серия 1.165-1 ( ИИ 03-02 ), 1.165-6
Плиты ребристые Серия 1.165.1-15
Плиты ребристые Серия 1.242-2
Плиты ребристые Серия 1.440-1
Плиты ребристые Серия 1.440-2
Плиты ребристые Серия 1.440-3м/92
Плиты ребристые Серия 1.442.1-1/87
Плиты ребристые Серия 1.442.1-2
Плиты ребристые Серия 1.465-3
Плиты ребристые Серия 1.465-7
Плиты ребристые Серия 1.465.1-13
Плиты ребристые Серия 1.465.1-16
Плиты ребристые Серия 1.465.1-17
Плиты ребристые Серия 1.465.1-3/80
Плиты ребристые Серия 1.465.1-7/84
Плиты ребристые Серия 1.865-1
Плиты ребристые Серия 1.865.1-4/80
Плиты ребристые Серия 1.865.1-4/84
Плиты ребристые Серия 3.503-29
Плиты ребристые Серия 3.503.1-55
Плиты ребристые Серия 3.820-13
Плиты ребристые Серия 3.820-6
Плиты ребристые Серия ИИ 03-02
Плиты ребристые Серия ИИ 24-1
Плиты ребристые Серия ИИ 24-1/70
Плиты ребристые Серия ИИ 24-10
Плиты ребристые Серия ИИ 24-11
Плиты ребристые Серия ИИ 24-2/70
Плиты ребристые Серия ИИ 24-4/70
Плиты ребристые Серия ИИ 24-5/70
Плиты ребристые Серия ИИ 24-6
Плиты ребристые Серия ИИ 24-8
Плиты ребристые Серия ИИ 24-9
Плиты ребристые Серия ИИ 64
Плиты ребристые Серия ИИС 24-1
Плиты ребристые Серия ИИС 24-1/73
Плиты ребристые Серия ИИС 24-2
Плиты ребристые Серия ИИС 24-2/73
Плиты ребристые Серия ПК 01-100/62
Плиты ребристые Серия ПК 01-74/62
Плиты ребристые Серия ПК 01-88
Плиты ребристые Серия ПК 01-99
Плиты ребристые Серия ПК 01-99/62
Плиты ребристые ТП 213-2-183
Плиты ребристые ТЧ 52-56
Плиты ребристые Шифр В.33.17/92
Плиты ребристые Шифр М33.02/06
Плиты ребристые Шифр М33.15/92
Плиты ребристые высотой 500 мм Серия 1.442.1-3
Плиты ребристые железобетонные ГОСТ 7740-55
Плиты ребристые железобетонные крупнопанельные Серия ПК 01-106
Плиты ребристые сантехнические Серия 1.041.1-2
Плиты ребристые сантехнические Серия 1.041.1-3
Плиты ребристые сантехнические Серия Б1.020.1-7
Плиты ребристые серия 1.042.1-5.94 ( 1.042.1-4 )
Плиты ребристые серия 1.065.1-2.94 ( 1.865.1-4/89, 1.865.1-4/84, 1.865-1 )
Плиты ребристые серия 1.442.1-1.87 ( ИИ24-10, 1.442.1-1, ИИ24-9, ИИ24-1/70, ИИ24-1 )
Плиты ребристые серия 1.442.1-5.94 ( 1.442.1-2, ИИ24-6, ИИ 24-2/70, ИИ 24-5/70 )
Плиты ребристые серия 1.465.1-15
Плиты ребристые серия 1.465.1-19 ( ПК 01-88 )
Плиты ребристые серия 1.465.1-20 ( 1.465.1-7/84 )
Плиты ребристые серия 1.465.1-21.94 ( 1.465.1-17 )
Плиты ребристые серия 3.503.1-75 ( 3.503-29 )
Ребра продольные Серия ПК 01-99
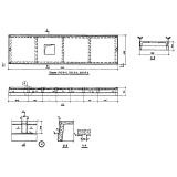
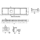
Плиты ребристые Серия ИИС 24-1
5550х1485x400
П 1 с-1 (ИИС 24-1)
31 010
₽/шт.
В корзину
5550х1485x400
П 1 с-1-2 (ИИС 24-1)
35 000
₽/шт.
В корзину
5550х1485x400
П 1 с-1-3 (ИИС 24-1)
33 950
₽/шт.
В корзину
5550х1485x400
П 1 с-1-4 (ИИС 24-1)
32 550
₽/шт.
В корзину
5550х1485x400
П 1 с-2 (ИИС 24-1)
31 010
₽/шт.
В корзину
5550х1485x400
П 1 с-3 (ИИС 24-1)
31 010
₽/шт.
В корзину
5550х1485x400
П 1 с-3-2 (ИИС 24-1)
30 800
₽/шт.
В корзину
5550х1485x400
П 1 с-3-3 (ИИС 24-1)
29 400
₽/шт.
В корзину
5550х1485x400
П 1 с-3-4 (ИИС 24-1)
30 800
₽/шт.
В корзину
5550х1485x400
П 1 с-4 (ИИС 24-1)
31 010
₽/шт.
В корзину
5550х1485x400
П 1 с-4-2 (ИИС 24-1)
30 800
₽/шт.
В корзину
5550х1485x400
П 1 с-4-3 (ИИС 24-1)
29 400
₽/шт.
В корзину
5550х1485x400
П 1 с-4-4 (ИИС 24-1)
30 800
₽/шт.
В корзину
5550х1485x400
П 1 с-5 (ИИС 24-1)
31 010
₽/шт.
В корзину
5550х1485x400
П 1 с-6 (ИИС 24-1)
31 010
₽/шт.
В корзину
5550х1485x400
П 1 с-6-2 (ИИС 24-1)
30 800
₽/шт.
В корзину
5550х1485x400
П 1 с-6-3 (ИИС 24-1)
29 400
₽/шт.
В корзину
5550х1485x400
П 1 с-6-4 (ИИС 24-1)
30 800
₽/шт.
В корзину
5050х1485x400
П 2 с-1 (ИИС 24-1)
28 210
₽/шт.
В корзину
5050х1485x400
П 2 с-2 (ИИС 24-1)
28 210
₽/шт.
В корзину
5050х1485x400
П 2 с-3 (ИИС 24-1)
28 210
₽/шт.
В корзину
5050х1485x400
П 2 с-4 (ИИС 24-1)
28 210
₽/шт.
В корзину
5050х1485x400
П 2 с-5 (ИИС 24-1)
28 210
₽/шт.
В корзину
23 из 23 (страниц 1)
Заказать звонок