Отгружено ЖБИ: всего -
000 000
тонн; за 2025 год -
00 000
тонн
Посмотреть
Заключено договоров: всего -
0 000
шт.; за 2025 год -
000
шт.
Единый номер:
8 (800) 500-22-52
Выберите город
Благовещенск
Владивосток
Екатеринбург
Иркутск
Казань
Кемерово
Краснодар
Красноярск
Москва
Нижний Новгород
Новосибирск
Омск
Пермь
Ростов-на-Дону
Самара
Санкт-Петербург
Симферополь
Сургут
Тюмень
Хабаровск
Челябинск
Ваш город «
»?
Да
Нет
Выберите город
Заказ онлайн
Корзина:
0 шт.
Корзина
0
шт.
Расчитать
О нас
О компании
Документация
Судебная практика
Преимущества
Вопросы/ответы
Портфолио
Работа в цифрах
Прямой эфир с производства
Каталог
Каталог по группам
Условия доставки
Контакты
Найти
Каталог по группам
Главная
Каталог по группам
Лотковые элементы
Лотки железобетонные
Лотки теплотрасс Ло Серия 3.00...
Желоба Серия 3.602.1-1
Каналы непроходные Серия 3.903 КЛ-14
Лотки 3.820.1-69
Лотки Альбом 819
Лотки Альбом СК 3301-86
Лотки Л Серия 3.501.1-179.94
Лотки Л Серия ИС 01-04
Лотки Серия 1.219-2
Лотки Серия 3.006.1-7
Лотки Серия 3.818.9-2
Лотки Серия 3.820-11
Лотки Серия 4.902-3
Лотки Серия Б3.006.1-1.03
Лотки Серия Б3.300.1-5.04
Лотки Серия ХТР 1-1
Лотки ТП 320-55
Лотки ТП 902-2-356
Лотки водоотводные ГОСТ 21509-76
Лотки водопойные параболические Серия 3.820-23
Лотки водосборные Серия 1.100.1-7
Лотки водосточные ТПР 320-069.86
Лотки водосточные без уклона СТО 57388863-001-2008
Лотки водосточные канальные с уголком,с вертикальным выпуском СТО 57388863-001-2008
Лотки водосточные с уклоном СТО 57388863-001-2008
Лотки дренажные (инд.)
Лотки железобетонные оросительных систем ГОСТ 21509-76
Лотки железобетонные оросительных систем ГОСТ 24587-81
Лотки кабельных каналов Серия 3.407-40/70
Лотки кабельных каналов Серия 4.407-267
Лотки кабельных каналов серия 3.407.1-157 ( серия 3.407-102, 3.407-40/70 )
Лотки каналов ЛК серия 3.006.1-8
Лотки каналов с отверстиями ЛКО серия 3.006.1-8
Лотки кровли Серия 1-335 ТулМ
Лотки междупутные Альбом 984, Серия 3.501-68
Лотки междупутные Альбом ГИПРОТРАНСПУТЬ
Лотки монолитные ТПР 320-069.86
Лотки облегченные Серия 3.820.1-69
Лотки параболические раструбные Серия 3.820-3
Лотки параболические раструбные Серия 3.820.1-34с
Лотки противоэрозионные раструбные Серия 3.820-21
Лотки телескопические Серия 3.503.1-66
Лотки телефонные Серия 1.465.1-19
Лотки теплотрасс Л Серия 3.006-2
Лотки теплотрасс Л Серия 3.006-2 доборные
Лотки теплотрасс Л Серия 3.006.1-2/82
Лотки теплотрасс Л Серия 3.006.1-2/82 доборные
Лотки теплотрасс Л Серия 3.900.1-12
Лотки теплотрасс Л серия 3.006.1-2/87
Лотки теплотрасс Л серия 3.006.1-2/87 доборные
Лотки теплотрасс Ло Серия 3.006-2 с отверстием
Лотки теплотрасс Ло Серия 3.006.1-2/82 с отверстием
Лотки теплотрасс Ло серия 3.006.1-2/87 с отверстием
Лотки теплотрасс Лу Серия 3.006-2 угловые
Лотки теплотрасс Лу Серия 3.006.1-2/82 угловые
Лотки теплотрасс Лу серия 3.006.1-2/87 угловые
Лотки теплотрасс керамзитобетонные ГОСТ Р 56589-2015
Лотки теплофикационные Серия 3.903 КЛ-14
Лотковые днища Альбом СК 3301-86
Лотковые перекрытия Альбом СК 3301-86
Лотковые элементы Альбом ПС 312
Оголовки лотков Серия 3.501-68
Оголовки междушпальных лотков Альбом 984
Опорные подушки Серия ХТР 1-1
Рамы лотков Серия 3.820-11
Элементы прямоугольных лотков Серия 3.900-2
Элементы прямоугольных лотков Серия 3.900-3
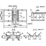
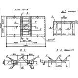
Лотки теплотрасс Ло Серия 3.006-2 с отверстием
5970х1840x630
Ло 14-8 (3.006-2)
49 000
₽/шт.
В корзину
5970х1840x780
Ло 15-8 (3.006-2)
52 000
₽/шт.
В корзину
5970х1840x1080
Ло 16-8 (3.006-2)
65 500
₽/шт.
В корзину
5970х1840x1380
Ло 17-8 (3.006-2)
77 500
₽/шт.
В корзину
5970х1840x1680
Ло 18-8 (3.006-2)
95 500
₽/шт.
В корзину
5970х2160x800
Ло 19-8 (3.006-2)
65 750
₽/шт.
В корзину
5970х2160x1100
Ло 20-11 (3.006-2)
77 750
₽/шт.
В корзину
5970х2160x1400
Ло 21-11 (3.006-2)
91 250
₽/шт.
В корзину
2970х2160x1700
Ло 22-8 (3.006-2)
54 500
₽/шт.
В корзину
5970х2460x800
Ло 23-8 (3.006-2)
74 500
₽/шт.
В корзину
5970х2460x1100
Ло 24-8 (3.006-2)
84 500
₽/шт.
В корзину
2970х2460x1400
Ло 25-8 (3.006-2)
50 750
₽/шт.
В корзину
2970х2460x1700
Ло 26-8 (3.006-2)
58 250
₽/шт.
В корзину
2970х2780x820
Ло 27-8 (3.006-2)
48 500
₽/шт.
В корзину
2970х2780x1120
Ло 28-8 (3.006-2)
53 750
₽/шт.
В корзину
2970х2780x1420
Ло 29-8 (3.006-2)
61 250
₽/шт.
В корзину
2970х2780x1720
Ло 30-8 (3.006-2)
68 750
₽/шт.
В корзину
2970х3380x850
Ло 31-8 (3.006-2)
62 750
₽/шт.
В корзину
2970х3380x1150
Ло 32-8 (3.006-2)
68 000
₽/шт.
В корзину
2970х3380x1450
Ло 33-8 (3.006-2)
75 500
₽/шт.
В корзину
2970х3380x1750
Ло 34-8 (3.006-2)
83 750
₽/шт.
В корзину
2970х4000x900
Ло 35-8 (3.006-2)
84 000
₽/шт.
В корзину
2970х4000x1200
Ло 36-8 (3.006-2)
84 250
₽/шт.
В корзину
2970х4000x1500
Ло 37-8 (3.006-2)
97 500
₽/шт.
В корзину
Показать еще
1
2
>
>|
24 из 25 (страниц 2)
Заказать звонок