Отгружено ЖБИ: всего - 000 000 тонн; за 2025 год - 00 000 тонн Заключено договоров: всего - 0 000 шт.; за 2025 год - 000 шт.

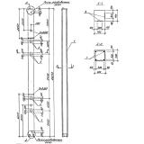
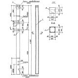
Колонны ТП 901-5-41.87

Фото товара - К 1 (ТП 901-5-41.87)
11650х400x400
39 060
₽/шт.
Фото товара - К 2 (ТП 901-5-41.87)
13250х400x400
44 520
₽/шт.
Фото товара - К 3 (ТП 901-5-41.87)
11650х400x400
39 060
₽/шт.
Фото товара - К 4 (ТП 901-5-41.87)
13250х400x400
44 520
₽/шт.